Дом по адресу Щёлково, Гоголя, за 12990000 р.

Адрес Щёлково, Гоголя, 50
Цена 12 990 000 р.
Площадь дома 128,2 м2, участка 3,08 м2
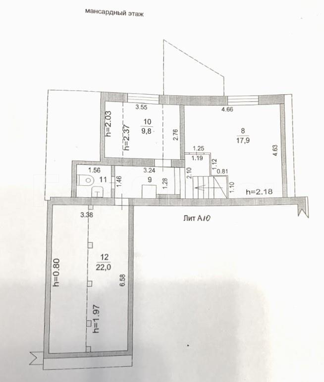
Продается комфортный дом с земельным участком и всеми центральными коммуникациями, полностью готовый к проживанию в г. Щелково, ул. Гоголя! Жилой дом 2-х этажный (2-й этаж – мансардный), общая площадь 128,2 кв.м., жилая площадь – 74,7 кв.м. На 1 -м этаже расположены: гостиная 23,3 кв.м., две жилые комнаты 11,4 и 12,3 кв.м., кухня 8,3 кв.м., совмещенный санузел с ванной, холл 6,7 кв.м. На 2-м этаже расположены: две жилые комнаты 17,9 и 9,8 кв.м., санузел и гардеробная 22 кв.м. Коммуникации все центральные: холодное водоснабжение, канализация, газ, электричество, для горячего водоснабжения установлено современное газовое оборудование. Состояние отличное, встроенная кухня, оборудована встроенной техникой, возможна продажа с мебелью. В доме установлена охранная система с сигнализацией на пульт охранного агентства. Дом является частью жилого дома с отдельным входом и отдельным заездом с улицы, оформлен как отдельный объект права (квартира) на основании Соглашения о разделе жилого дома. Часть дома 43,2 кв.м. 1961 г. постройки, в 2014 г. дом был достроен до 128,2 кв.м., материал постройки - кирпич. Земельный участок – 308 кв.м., земли населенных пунктов, для введения личного подсобного хозяйства, ровной формы, на участке яблони, вымощен брусчаткой, огорожен, есть гараж. Дом расположен в черте города Щелково со всей необходимой инфраструктурой – в 5-10 мин. пешком – школа, детский сад, училище олимпийского резерва, поликлиника, множество магазинов, в т.ч. сетевые ритейлы – Пятерочка, Дикси, Чижик, Магнит. В 400 метрах – река Клязьма. Удобная транспортная доступность – на а/м 22 км. от МКАД по Щелковскому ш. или 25 км. по Ярославскому шоссе, от метро Щелковская – 50 мин на автобусе или 30 мин. на электричке от м. Ростокино. Право собственности с 2012 г., один взрослый собственник, свободная продажа, выписка до продажи. Ипотека возможна, поможем в получении ипотечного кредита.
Объявление № 23764476
Дата подачи:
10 декабря 2025 г. 4:27
Дата обновления:
10 декабря 2025 г. 4:27
Просмотров 2 Хотите продать быстрее?

Продавец
Агентство недвижимости:
Хуснулина Елена Захаровна
Показать номер телефона
Пожаловаться
Комментарии:
Добавить